P1
P2
P3
P4
P5
P6
P8
P9

Servicios:

- Proyecto de asesoramiento e reforma de vivienda y Dirección de Obras

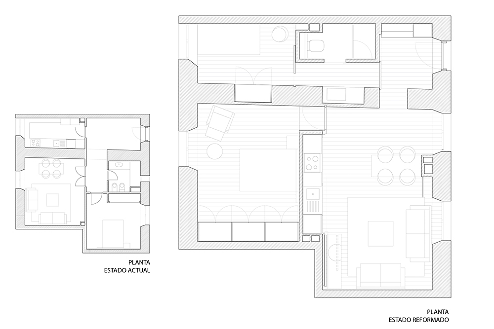
La necesidad de una nueva habitación y la desproporcionada dimensión del zaguán de entrada frente al resto de estancias habitables nos hace replantear una nueva distribución de la vivienda. La nueva zona de día se vuelca al tranquilo patio de San Laureano al que se abre un nuevo hueco de luz, mientras que los dos dormitorios se trasladan a la crujía de fachada.

Salón-estar y cocina se convierten en un único espacio, donde unas puertas correderas de gran dimensión acabadas en bambú, transforman la imagen del mismo según se abran o cierren dejando ver o no la cocina.

El nuevo baño dividido en dos zonas, se concibe como elemento de paso al dormitorio pequeño, donde un lavabo esculpido en piedra se convierte en elemento de diseño que puede incorporarse al nuevo recibidor.

- - Reforma integral de viviendaonsistente en nueva distribución, instalaciones de fontanería, electricidad, aire acondicionado y ventilación. Apertura de hueco en fachada. Nuevos revestimientos en suelo, pared y techos.

- Carpintería a medida. Suelo macizo de bambú, puertas correderas de gran dimensión en bambú, cocina lacada a medida con electrodomésticos integrables, puertas lacadas de suelo a techo, armarios lacados y mobiliario en bambú.

 

Datos|EN CONSTRUCCIÓN

 

Ciudad:Sevilla

Distrito: Centro

Sup. CONST.71,93 m2

Sup. Útil53,15 m2

 

P.E.M. XXXX

Plazo ejecución:4 meses